ともさんのHP >趣味養蜂 >吉田式巣箱 >「吉田式巣箱」の製作:架台編

「吉田式巣箱」の製作:架台編

以前設計した100年前の日本ミツバチの巣箱「吉田式巣箱楽天 」を作ります。今回は、架台編です。

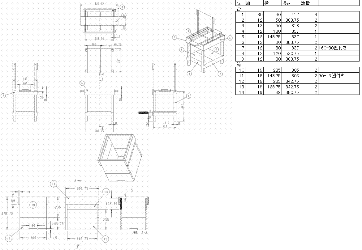
吉田式巣箱架台部分の図面

吉田式巣箱


広告

吉田式巣箱架台部分の組み立て

いつものように木材を図面どおりの長さにカットして、図面楽天 どおりの幅に切ります。
今までの作業を通じて、スライド丸のこが欲しいと実感しました。縦方向はテーブルソーで すんなり切れますが、横方向の丸ノコ+定規でのカットは時間もかかるし制度もあまり良くありません。
いつの日か、スライド丸ノコを買おう!と心に決めました。
丸のこで木材カット テーブルノコギリで木材をカット


今回は凹型の部材が一つあるので、ルーターで加工しました。 3mmくらいづつカットして深さ32mmの凹みを作りました。
ルーターテーブル


釘を使って組み立てます。角材は前回の屋根材購入の時に一緒に買ってカットしてあります。
これで完成。(正確にはまだ底に金網を敷く必要があります)
組み立て中の架台 完成した架台


ではさっそく、巣箱をパイルダーオン!
巣箱を載せる


吉田式巣箱の完成

さらに屋根楽天 を載せて、吉田式巣箱の完成です。
100年の時を経て蘇った吉田式巣箱、屋根を載せたときは感激しました。
100年の時を経て再び蘇った吉田式巣箱

左は「実験養蜂新書」に記載通りに作った3Dモデル。右は原書から転載した巣箱の図です。 なんだかずいぶん雰囲気が違いますね。
吉田式巣箱 吉田式巣箱


広告

妻曰く、「仮須屋みたいで縁起悪い」とのこと。でもちょうど庭の金稜辺に日本蜜蜂がたくさん来ているので、 しばらくは庭に置くことにしました。ご近所さんに「何だアレは?」と言われてしまいそう。
庭に置いた吉田式巣箱

最終更新日: 2011-05-18 07:18:07

ともさんのHP >趣味養蜂 >吉田式巣箱 >「吉田式巣箱」の製作:架台編

広告
新着ページ

AIを利用し、衣服のデザイン画から型紙を制作する方法  
2つのアパレル3D技術でひらくオーダーメイド生産の手法  
【洋裁型紙】前後身頃の肩の傾きは何故前身頃の方が傾いているのか  
電子追尾式天体写真撮影法  
日本ミツバチ巣箱の種類  
ドラフター(製図台)でソーイング  
日本ミツバチが逃亡  
カメさんの箱庭  
天体用デジタルカメラの構造と天体写真  
Javaで静止画像(Jpeg)を動画(Mov)に変換  
USBカメラをJAVAで制御  

他のサイト

3D-CAD
洋裁CAD

いいねなど

 RSS 

Author: Tomoyuki Ito

このサイトの文章・写真の無断転載を禁じます