ともさんのHP >ものつくり >ともさんの開発室 >ブドウ棚を設計しました

ブドウ棚を設計しました

畑に蔓植物を植えるための棚を作りました。
この棚以前に竹を組んだ棚を作ってあったのですが、すぐに朽ちてしまい、植えてあるブドウだけが辛うじて立っている状態になっていました。
急がないとブドウも倒れてしまうので、なるべく簡単で耐久性がよく、早く作れる棚を考えました。
最初は木材を使って作るつもりだったのですが、天ざらしでは木もすぐに腐ってしまいそうです。
ネットで調べたら単管でつくると長持ちするとのことでした。この 単管 楽天 を使ってブドウ棚を設計しました。
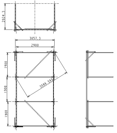
単管を使った棚

広告

こんな感じ。単管の間にはステンレスの針金か、竹を渡します。
縦横を支える単管のほか、斜めにも短めの単管を使った筋交いを入れ、ゆがまないようにしています。
図には入っていませんが、単管の根元部分はコンクリートの台の上に載せるように考えています。
参考に見てまわった植物棚は、単管を直接地面に深く差し込んでいるものが多かったのですが、これではこの部分から錆びてしまいます。
差し込まないとグラグラしてしまうのですが、筋交いをきっちりと入れることで固定します。


単管植物棚の図面

図面も載せておきます。 幅3m、長さは6mあります。ブドウのほか、キューイフルーツ、藤、アケビも這わせる予定です(というかもう買ってしまっています)。
単管を使った棚の図面


継ぎ手はhttp://www.ashiba-pipe.com/product.htm が気に入ったので注文しました。このashiba-pipe.comさんは情報が豊富で、設計楽天 にもいろいろ役立ちました。 ここの継ぎ手を使うときれいで耐久性のあるものが作れそうです。
ホーミセンターで売っている接手は、締め付けるネジがすぐにさびてしまうようです。

広告


単管植物棚の部品/価格一覧表

部品表をエクセルで作りました。費用は大体6万円くらいかかる予定。 近所のお宅で扶養ア単管があるとのことなので、できる限りこれも利用して安く済ませようと思っています。
単管を使った棚の部品表


完成した単管棚

この棚はすでに出来上がって使ってます。その後の様子は こちらをご覧ください。

最終更新日: 2018-01-12 07:38:44

ともさんのHP >ものつくり >ともさんの開発室 >ブドウ棚を設計しました

広告
新着ページ

AIを利用し、衣服のデザイン画から型紙を制作する方法  
2つのアパレル3D技術でひらくオーダーメイド生産の手法  
【洋裁型紙】前後身頃の肩の傾きは何故前身頃の方が傾いているのか  
電子追尾式天体写真撮影法  
日本ミツバチ巣箱の種類  
ドラフター(製図台)でソーイング  
日本ミツバチが逃亡  
カメさんの箱庭  
天体用デジタルカメラの構造と天体写真  
Javaで静止画像(Jpeg)を動画(Mov)に変換  
USBカメラをJAVAで制御  

他のサイト

3D-CAD
洋裁CAD

いいねなど

 RSS 

Author: Tomoyuki Ito

このサイトの文章・写真の無断転載を禁じます