育苗棚の作り方と夏季の育苗方法
夏に種まきをするキャベツやブロッコリー、白菜などは、まずポリポットに種まきをして、苗を育て、その後畑に定植するのが一般的です。
この育苗ががなかなか難しくて失敗続きです。そこで、行く育苗棚を自作して苗にとって良い環境を整えることにしました。
このページでは育苗棚の効果や作りかた、図面について記述しています。

夏の苗つくりの難しさ
冬野菜のブロッコリー、キャベツ、白菜などは、真夏の暑い時期に種まきをして育てます。
涼しくなってからと遅らせると、小さい状態で真冬になって収穫量が減ってしまったり、結球してくれないことになります。
このために暑い時期に種まきするのですが、連日の猛暑ですぐに乾燥してしまいます。かといって水をたくさん与えたり、日よけをすると徒長することになります。
無事暑さを乗り切って涼しくなってくると、今度は芋虫が襲いかかり、あっという間に葉っぱが無くなります。
数年前から家庭菜園を本格的にしていますが、この時期の育苗はほんとに難しいと感じています。
育苗棚の効果
そこできちんとした育苗棚を作ることにしました。
地面から苗を離しておくことで、高温を避け、通気を得る
上に寒冷紗を掛けることで日光の強さを調整し、虫の侵入を防ぐ
こうした効果のある棚を考えました。
育苗棚の設計
簡単な構造だけど、いつものようにFusion-360という3D-CADを使って設計しました。趣味用途であれば無料で使用できます。
風通しがよいように、梯子状の構造にして、割竹を上に付け、寒冷紗をかけても空間が空くようにしました。
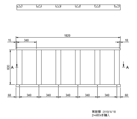
ちょっと重いですが、長さ1820mmの2×4材を4本使っています。板の厚みが38㎜あり、ここに大きめの穴を開けて割竹を挿入することが出来ます。
2×4楽天 材2本はそのまま、2本は600㎜6本にカットして桁に使っています。

組み立てと設置
まずは20㎜のドリルを使って穴を開けます。貫通させてはいけないので、写真のような(青色に見えるもの)ストッパーをドリルに取り付けます。
ドリル径が大きいため、ストッパーがないと歯が木に食い込んでしまい、途中で留めるのは難しいです。穴の深さはストッパーの位置で調整できます。

こんな感じで等間隔に穴を開けました。

桁をコーススレッドで固定したら、主構造は完成です。
このサイズだと、稲作用の育苗トレイがピッタリ納まります。

午前中だけ日の当たる場所にコンクリートブロックを用いて地面から離して設置しました。

種蒔きしたポリポットを並べた育苗トレイを中において、寒冷紗をかければ設置完了です。
高温時育苗のコツ
農協からもらったアドバイスの要約をまとめました。
〇徒長させない
真夏の育苗は徒長しやすいのだそうです。
徒長の原因としては、水のやりすぎ、日照不足、高温があるそうです。
日照不足を避けて日に当てれば高温になるし、すぐ乾くのでついつい水野やりすぎになってしまいがちです。
あれを立てようとするとこれが立たなくなる、結局徒長させてしまいがちです。
上で作ったような育苗棚を作れば、風通しがよく、地面からの熱を避けられて、かつ日光を適度に調整することが出来ますね。
種蒔き直後に新聞紙などを被せて湿度を維持しますが、これの外し遅れも徒長の原因になります。
3割くらい発芽したら新聞紙を外し、日陰において残りの発芽を待ってから日に当てるとよいそうです。
手間がかかりますが、発芽した苗を個別に移動させるというのも、数が少なければよいと思います。
育苗箱は、午前中日がよく当たり、午後には日陰になるところに置いたところ、うまく育ちました。苗には西日が当たることが過酷な生育条件になるようです。
〇害虫対策
昆虫の多い時期なので、寒冷紗で覆って、被害を受けないように気を付けます。
ハイマダラメイガ(シンクイムシ)という害虫が要注意です。この幼虫は苗の生長点を食べてしまうので、被害を受けるとその後の生育が非常に悪くなってしまいます。
定植後の被害予防には、定植の5日くらい前にプレバソンフロアブル5などの薬剤を与えておくとよいです。
アブラナ科の作物では、根こぶ病にも気を付けます。輪作するのが予防の基本ですが、病気の出てしまった土地では薬剤処理をしておくのがよいでしょう。
最終更新日: 2019-11-15 05:18:49