宅配BOX兼ベンチの作り方
玄関脇に置いて、普段はベンチ、座板部分を開けると宅配ボックスになる家具をDIYで作りました。
作り方を紹介します。

構造
板材で閉じた箱型をしています。高さ、奥行きはちょうど人が座れるくらいにして、ベンチとして使えるようにしました。天板は開けることができます。
鍵をつければ、宅配ボックスとして使うことができます。現在は鍵をつけておらず、玄関周りの掃除道具などを収納しています。
ベンチのサイズなので、宅配ボックスにしては横長です。奥行き高さは小さめなので、純粋な宅配ボックスとしては中途半端な形かもしれません。
とはいっても、玄関わきに無骨な箱を置くのも嫌なので、このような兼用型にしました。
材料と道具
材料はホームセンターで売っている木材の、1×6材(厚み19mm、幅140㎜、長さ1820㎜)7本、1×4材(厚み19mm、幅87㎜、長さ1820㎜)2本、2×4材(厚み37mm、幅87㎜、長さ1820㎜)2本。
コーススレッド(長さ37mm)、蝶番2個を使います。
カットはホームセンターでしてもらったので、必要な道具は、コーススレッドをねじ込む電動ドリルくらい。
他に巻き尺、鉛筆などが必要になります。
製作費
木材楽天 と蝶番、カット代で6000円弱でできました。コーススレッドは手持ちのものを使っています。
作り方手順
まずは設計します。最近は無料で使える3D-CAD(Fusion360など)が普及してきているので、このFusion360楽天 を使って設計楽天 しました。
ベンチの幅など、とりあえずで作ってから材料の余り具合をみて変更できるため、3D-CADはとても便利です。

形が決まったら、木取り図を描きます。描いてみて、残材が多かったり、寸法が足りなかったりする場合は3Dに戻って寸法を調整します。
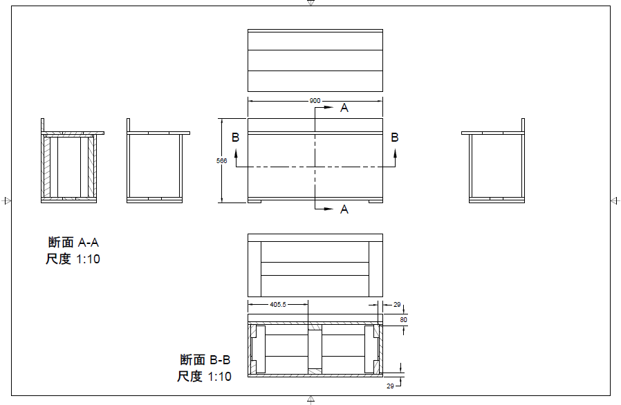
今回はベンチの幅を900㎜にしました。材料の長さが1820㎜なので、ちょうど半分になり、材料を有効に使うことができます。
カット
ホームセンターで材料を購入し、そのままカットしてもらいました。カット代は1回50円。14回ほど切ったので、700円ほどかかりました。
大きなスライドのこぎりで切るので、同じ長さの部材は並べて1回で切ります。こうすればカット回数が減って安くなり、また長さのばらつきも無くなります。
下の木取り図を持ち込んで、切る回数を最小になるように考えて切る順序を指定しました。

切って持ち帰った木材です。短くなっているので車への積み込みも楽でした。

ホームセンターで切ると正確ですし、時間もかかりませんお金がかかりますが、自分で切るより切ってもらった方がよいと思います。
箱部の組み立て
材料がそろったので、さっそく組み立ててゆきます。コーススレッドを使いますが、19㎜の板を接合するので、38㎜のものを使いました。
2枚重ねたときの厚みにピッタリなので、先端が反対側に出てしまう恐れがあるのですが、他に適切な長さのものが見つかりませんでした。
勢いあまってねじ込みすぎて突き出さないように気を付けて作業しました。

まずは、側面短い側を組み立てます。4隅に使う2×4楽天 材に、1×6材を3枚取り付けます。

これに長い側の板を張り付けてゆき、側面の完成。

裏板を張り付けます。裏板は1×6、2枚。1×4、1枚を使いました。設置部分に脚として板を貼っておきます。
蓋の組み立て
箱の蓋、ベンチの座面を組み立てます。

1×6材3枚を並べ、1×4材を横に渡して固定します。箱側の奥行きは1×6、2枚+1×4、1枚分なので、蓋の方が幅広で、少しとびだすようになります。
蓋を開け閉めするときに指を挟まないようにするために、このようにしました。

蓋ができたら、蝶番で箱と接合します。座板には小さな「背もたれ」をつけました。
完成
これで完成です。

細部の構造
小さい背もたれですが、開いた時に蝶番に力がかかり過ぎないように付けています。

しかし、これを付けたために、壁との間にすきまを設ける必要ができてしまいました。

座板にhとが座ったときの荷重は、座板から側面の板へ伝えるのではなく、箱の内側に立てた6本の2×4材に伝えるようにしています。
座板と2×4がしっかり当たるよう、座板と側板の間に3㎜程のすきまを付けています。

虫が入るかなぁと思っているのですが、まあ仕方ないかな。
あと、側板は並べてあるだけなので、板同士の隙間が少しですがあります。この辺からも何か入りそうです。
もちろん、雨は入ってしまうので、軒下に設置する必要があります。
最終更新日: 2019-01-28 08:07:14